Дом в Квебеке.
Квебек своими живописными пейзажами и красотами природы славится. Расположенный в двух часах езды от Монреаля, Канада, в городке вентворт, дом площадью 914 квадратных метров, спроектированный архитекторами фирмы Bone Structure, отличается концепцией цокольного этажа с расположенным в нём входом и максимально открытым навстречу пейзажу первым этажом.
Опоясывающий здание балкон поощряет жильцов выйти на воздух, чтобы насладиться видом лаврентийских гор. Так же легко дышится и в просторном помещении первого этажа. Чувство умиротворения возникает благодаря сочетанию открытой планировки и высоких потолков гостиной, достигающих 4. 5 метра. Огромные окна в чёрных алюминиевых рамах, протянувшиеся от пола до потолка, позволяют свету заливать общественные зоны первого этажа и подчёркивают элегантную простоту обстановки дома.
Интерьер первого этажа выдержан, главным образом, в белом цвете, выразительные акценты добавлены в виде элементов из натурального дерева, всё это дополняется видом леса, растущего за окнами. Кухня выделяется прежде всего самостоятельно стоящим островом с рабочей поверхностью из кварца и шкафом из натурального ореха. Блестящий пол выполнен из полированного бетона и излучает тепло, что создаёт комфортную атмосферу в холодные зимние месяцы.
Из спальни хозяев открывается, возможно, лучший вид на окружающий пейзаж во всём доме, и примыкающий к ней балкон позволяет жильцам полностью погрузиться в ландшафт.
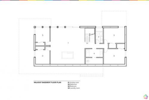
Спустившись в цокольный этаж, гости могут обнаружить ещё одну гостиную и две спальни. Оформленный в виде террасы выход на улицу - прекрасное дополнение к балкону первого этажа. Теперь гости могут отважиться выйти наружу и углубиться в лес настолько далеко, насколько им этого захочется.
Фасады имеют классическую отделку из дерева, конструктивные элементы из чёрного металла придают зданию современный характер.
Как и другие дома от Bone Structure, разработавшей запатентованную инновационную систему стальных конструкций, эта постройка была произведена в фабричных условиях в соответствии с самыми высокими технологическими стандартами и затем установлена на месте. Весь производственный процесс занимает у фирмы всего несколько месяцев, делая его простым и привлекательным для клиентов. Фотографии: Ulysse Lemerise / OSA.








Ещё читайте статьи об интерьере для дома в разделе http://interior.ru-best.com/interer-dlya-doma/interer-dlya-doma