Дизайн прямоугольной студии 29 3, 9 кв.
м. с одним окном в стиле минимализм.
Для оформления прямоугольной студии дизайнер Дарья Ельникова стиль минимализм выбрала. Площадь студии с одним окном всего 29 кв. м., при таких размерах этот стиль наиболее рационален. Простые формы мебели, лаконичные цветовые решения позволяют по максимуму сохранить простор и воздушность. Основные цвета интерьера - белый и серый. Это позволило внести графичные элементы, подчеркнув их контрастными черными деталями.

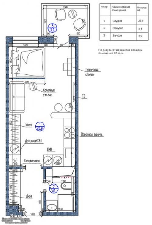
Планировка прямоугольной студии с одним окном.

Главной задачей было грамотно расположить зоны в вытянутом прямоугольном помещении, имеющем одно окно, и дизайнер блестяще с этим справилась.

Зона прихожей.

Сразу у входа в студию расположили вместительный встроенный шкаф для хранения одежды и обуви, напротив него вход в санузел.

Кухонная зона.

Белый глянец фасадов делает эту часть комнаты светлее, частично компенсируя недостаток дневного света от окна. Кроме того, предусмотрена яркая подсветка всей линии подвесных шкафов. Напротив кухонного гарнитура - еще один прямоугольный шкаф, в него встроена техника, и есть место для хранения различных бытовых мелочей. Кухню от гостиной отделяет барная стойка, выполняющая роль обеденного стола.

Гостиная - спальня.

Маленькая гостиная имеет все, что нужно для спокойного отдыха: удобный диван, напротив которого повесили тв - панель, легкий кофейный столик возле него с лампой, под которой удобно читать или заниматься рукоделием.

Далее возле окна расположилась спальня: широкая кровать и узкий прямоугольный столик - консоль, выполняющий роль туалетного стола: над ним повесили большое зеркало, а рядом поставили один невысокий пуф. От гостиной кровать отделяется перегородкой с круглыми отверстиями - через них свет из окна попадает в гостиную, пятнами разлетаясь по потолку и стенам - это добавляет движения и объема в интерьер прямоугольной студии. Niart дизайнинтерьера дизайнквартиры.
