Дизайн интерьера однокомнатной квартиры 39 кв.
м.
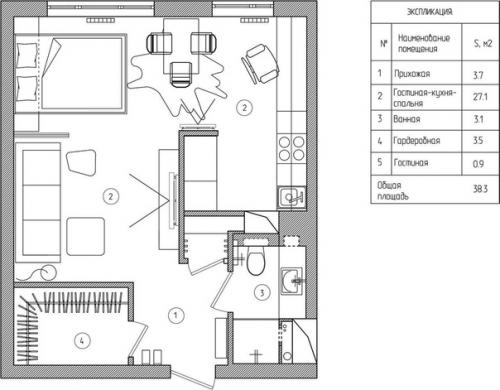
Однокомнатная квартира 39 кв. м. располагается в старом тихом районе северной столицы. Дом также старый, что создавало определенные сложности для перепланировки. Но в результате удалось добиться главного - создания на небольшой площади стандартной малогабаритной квартиры современного жилого пространства, предусматривающего наличие всех необходимых для комфорта зон.
В дизайне интерьера однокомнатной квартиры также учтена необходимость хранения различного спортивного инвентаря, возможность устройства гостевого спального места, и при необходимости изменение не только настроения в доме, но даже и его планировки.
В целом получившийся стиль можно назвать минимализмом в скандинавском духе. Обилие чистого белого цвета, системы хранения, спрятанные от глаз, текстиль, натуральное дерево - все это вносит в интерьер нордические нотки.
Интерьер однокомнатной квартиры со спальней сочетает в себе оттенки серого и бежевого. Элементы черного цвета подчеркивают конструктивные особенности и являются акцентными. На основном белом фоне теплые тона дерева и яркие солнечные оттенки текстиля создают уютную атмосферу.
Практически всю мебель делали специально для однокомнатной квартиры 39 кв. м. по рисункам дизайнера. Оригинально оформлена стена с тв - панелью: узкая длинная полка для техники подвешена к потолку на кронштейнах из металла, выкрашенных в черный цвет. Аналогично выполнено крепление раздвижных стеклянных перегородок между гостиной и спальной зонами.
В спальне кровать днем убирается в стену, отделанную деревом, а ночью откидывается. С обоих сторон от нее встроены системы хранения.
В дизайне интерьера однокомнатной квартиры предусмотрены различные световые сценарии для разных случаев. Также с помощью света можно подчеркнуть зонирование пространства. Обеденная зона обозначена большим черным подвесом - как жирной точкой в тексте.
Необычный торшер и металлический подвес в зоне гостиной помогут создать уют и спокойное настроение, или осветить книгу в руках. Для равномерного общего освещения однокомнатной квартиры со спальней во всех зонах есть потолочные светильники, которые можно направить в нужную сторону. Заодно они служат элементом, объединяющим пространство.
На небольшой площади невозможно разместить громоздкие шкафы, поэтому пришлось искать другие решения, чтобы в однокомнатной квартире 39 кв. м. хранить и велосипед, и горные лыжи, и всю горнолыжную экипировку.
Для этой цели при перепланировке специально предусмотрели два отдельных помещения. Одно предназначено для обычной одежды, другое, меньшего объема - для спортивного инвентаря. Велосипед закрепили на стене - так он не мешает и не занимает много места.
Кроме того, при разработке дизайна интерьера однокомнатной квартиры в каждой зоне предусмотрели свои места хранения. В спальне это шкаф, средняя часть которого на ночь превращается в кровать, а в боковых можно хранить постельное белье или другие предметы.
В гостиной - подвешенная к потолку на кронштейнах длинная вместительная полка, в прихожей - аккуратная тумба под зеркалом, в кухне - высокие шкафы над столешницей, в зоне кабинета - открытые полки над рабочим столом, и даже в ванной комнате есть вместительная тумба под раковиной.
Однокомнатная квартира со спальней не перегружена декором. Весь текстиль - натуральный, как и положено в скандинавском стиле. Это хлопок, шерсть и лен. Самые яркие акценты - желтые декоративные диванные подушки и черные металлические элементы подвесных конструкций.








