Деревянный домик Eco Perch в Швеции.
В Швеции появился дом эко - насест - именно так архитектурное бюро "Blue Forest" назвало свой проект построенного на дереве роскошного эко - дома (eco - Perch.
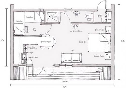
Дом построен полностью из натуральных материалов, строительство заняло всего пять дней при минимальном вмешательстве в окружающий пейзаж. Дом размерами 6 на 8 метров рассчитан на четырех человек. Также здесь расположены кухня, столовая, гостиная, спальня и ванная комната.
Свес крыши опоясывает овальный дом по сторонам, образуя небольшую веранду, через окна открывается вид на окружающий пейзаж. Возобновляемые источники энергии позволяет эко - дому существовать независимо. Интерьер может быть использован как в качестве офиса, так и в виде студии или классной комнаты. Дача@Isolux.






Ещё читайте статьи о мебели для ванной комнаты по ссылке http://interior.ru-best.com/mebel/mebel-dlya-vannoy-komnaty