м.
Дизайнер: Пахомова а.
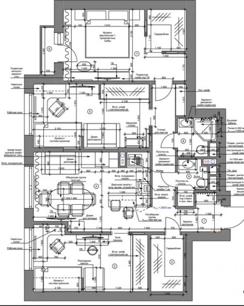
Прихожая 9, 74.
Гардеробная 3, 44.
1 детская 12, 77.
Кухня - гостиная 16, 63.
2 детская 13, 85.
Балкон 1, 11.
Спальня 13, 01.
Гардеробная 3, 06.
Ванная 2, 58.
Санузел 2, 27.
Идеальные решения для дизайна вашего интерьера.

Необычные идеи оформления. Как вам? Напишите в комментариях.







