Всё об интерьере для дома и квартиры
Лучшие идеи для дизайна интерьера, полезные советы, интересные статьи
Main menu
Главная
Интерьер для дома
Интерьер для квартиры
Идеи дизайна
Мебель
Главная
»
Интерьер для квартиры
»
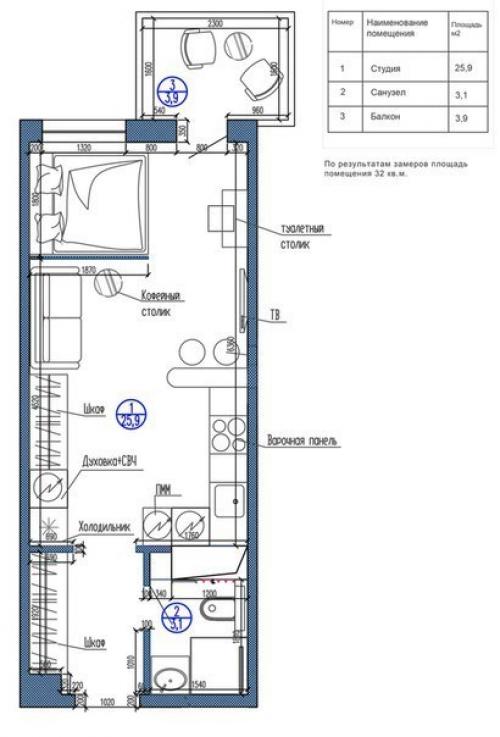
А тут более практичный вариант дизайна студии, 32 кв.
А тут более практичный вариант дизайна студии, 32 кв.
02.09.2020 в 12:30
Интерьер для квартиры
м
.
Категории:
Дизайн интерьера дома
,
Интерьер квартиры студии
Понравилось? Поделитесь с друзьями!
⇦
Кухня - гостиная. Как вам такая цветовая гамма.
⇨
Нестандартный подход к дизайну студии.