Всё об интерьере для дома и квартиры

Лучшие идеи для дизайна интерьера, полезные советы, интересные статьи

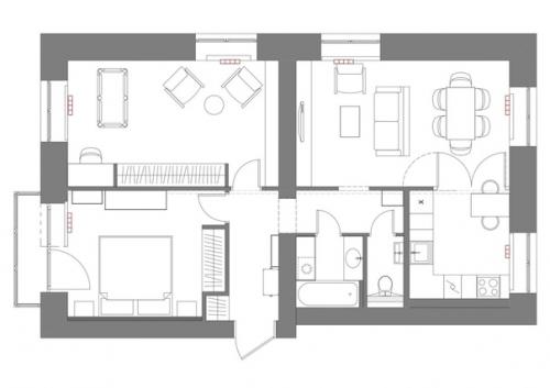
Стильная переделка трехкомнатной квартиры.

26.12.2022 в 17:54

Площадь: 75 кв. м. интерьер, с немного мужским характером.

Идеальные решения для дизайна вашего интерьера.
Необычные идеи оформления
Стильная переделка трехкомнатной квартиры..

Стильная переделка трехкомнатной квартиры. 01
Стильная переделка трехкомнатной квартиры. 02
Стильная переделка трехкомнатной квартиры. 03
Стильная переделка трехкомнатной квартиры. 04
Стильная переделка трехкомнатной квартиры. 05
Стильная переделка трехкомнатной квартиры. 06
Стильная переделка трехкомнатной квартиры. 07
Стильная переделка трехкомнатной квартиры. 08
Стильная переделка трехкомнатной квартиры. 09