Всё об интерьере для дома и квартиры

Лучшие идеи для дизайна интерьера, полезные советы, интересные статьи

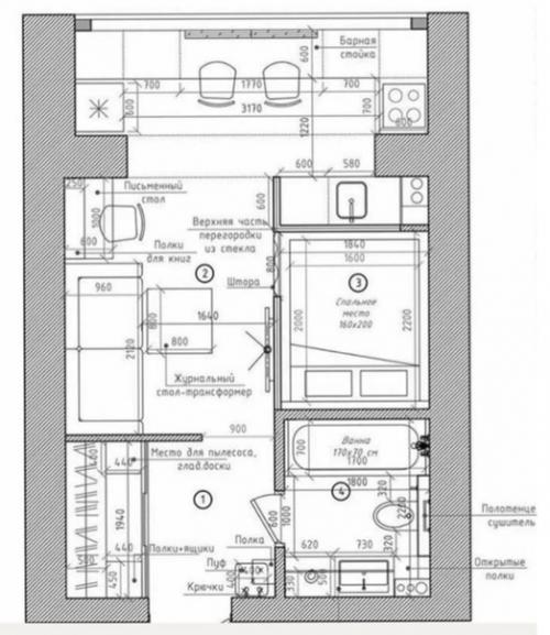
Современный интерьер квартиры - студии площадью 29 кв.