Всё об интерьере для дома и квартиры

Лучшие идеи для дизайна интерьера, полезные советы, интересные статьи

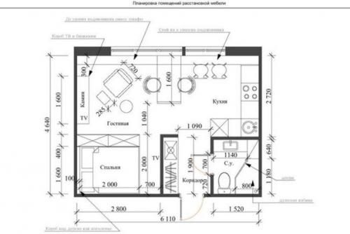
Современный интерьер квартиры площадью 27 кв.

26.02.2023 в 14:55

м, предназначенной для проживания молодой семейной пары.
Автор проекта: дизайнер Анна Симонова, город Москва
Современный интерьер квартиры площадью 27 кв..

Современный интерьер квартиры площадью 27 кв. 01
Современный интерьер квартиры площадью 27 кв. 02
Современный интерьер квартиры площадью 27 кв. 03
Современный интерьер квартиры площадью 27 кв. 04
Современный интерьер квартиры площадью 27 кв. 05
Современный интерьер квартиры площадью 27 кв. 06
Современный интерьер квартиры площадью 27 кв. 07
Современный интерьер квартиры площадью 27 кв. 08
Современный интерьер квартиры площадью 27 кв. 09