Современный и функциональный дизайн квартиры - студии 25 кв.
22.05.2016 в 01:34
м.
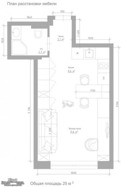
Дизайн квартиры - студии 25 кв. м. разработан авторами студии "Designrush", которые смогли превратить небольшую площадь обычной малогабаритки в невероятно функциональное и комфортное пространство. Оно идеально подходит для хозяйки жилья - молодой творческой женщины, пожеланием которой было обязательное наличие в будущем интерьере рабочего места.

Для того, чтобы зрительно увеличить помещение, выбрали светлую цветовую гамму, а сочетание молочного оттенка с текстурой дерева помогло создать уютную и теплую обстановку. В результате получился стильный современный интерьер квартиры - студии - с рациональным расположением мебели и с большим количеством мест для хранения различных вещей. Niart дизайнинтерьера дизайнквартиры.







Категории: Современный интерьер квартиры, Дизайн интерьера дома, Интерьер для квартиры, Интерьер квартиры студии, Стили интерьеров квартир