Всё об интерьере для дома и квартиры

Лучшие идеи для дизайна интерьера, полезные советы, интересные статьи

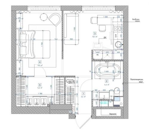
Смелый проект квартиры 37, 6 кв.

29.12.2024 в 11:29

м в ЖК Level амурская в Москве. Интерьер для девушки. Спальную зону и санузел отделили стеклянными перегородками.
Дизайн студии Ирины Малаховой (VK: Malahova_Design.
Санузел +
Смелый проект квартиры 37, 6 кв..

Смелый проект квартиры 37, 6 кв. 01
Смелый проект квартиры 37, 6 кв. 02
Смелый проект квартиры 37, 6 кв. 03
Смелый проект квартиры 37, 6 кв. 04
Смелый проект квартиры 37, 6 кв. 05
Смелый проект квартиры 37, 6 кв. 06
Смелый проект квартиры 37, 6 кв. 07
Смелый проект квартиры 37, 6 кв. 08
Смелый проект квартиры 37, 6 кв. 09