Всё об интерьере для дома и квартиры

Лучшие идеи для дизайна интерьера, полезные советы, интересные статьи

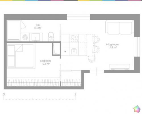
Small Space in London.

10.09.2015 в 13:30

Проект маленькой квартиры на окраине Лондона для молодой пары.

Общая площадь 34 кв. м.
Интерьер преимущественно в скандинавском стиле выполнен. Кухонная техника Miele.
Реализация интерьера планируется на 2016 г.
Small Space in London.
Дизайнер: Антон Гришин.

Small Space in London. 01
Small Space in London. 02
Small Space in London. 03
Small Space in London. 04
Small Space in London. 05
Small Space in London. 06
Small Space in London. 07

Подробнее читайте информацию об интерьере маленькой квартиры http://interior.ru-best.com/interer-dlya-kvartiry/interer-malenkoy-kvartiry