Всё об интерьере для дома и квартиры

Лучшие идеи для дизайна интерьера, полезные советы, интересные статьи

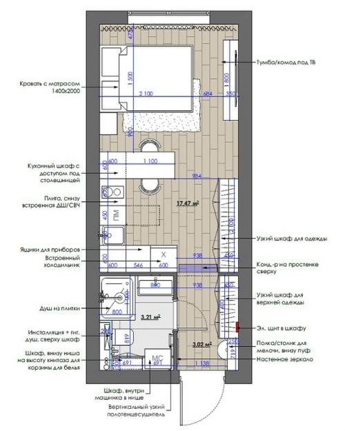
Проект компактной квартиры - студии 23, 7 м 2 в ЖК Neva Haus в Санкт-петербурге.

04.11.2025 в 17:55

Элегантный интерьер в бежевой и пыльно - розовой гамме.
Дизайнер Анастасия Шумова (VK: Shumovadesign1
Проект компактной квартиры - студии 23, 7 м 2 в ЖК Neva Haus в Санкт-петербурге..

Проект компактной квартиры - студии 23, 7 м 2 в ЖК Neva Haus в Санкт-петербурге. 01
Проект компактной квартиры - студии 23, 7 м 2 в ЖК Neva Haus в Санкт-петербурге. 02
Проект компактной квартиры - студии 23, 7 м 2 в ЖК Neva Haus в Санкт-петербурге. 03
Проект компактной квартиры - студии 23, 7 м 2 в ЖК Neva Haus в Санкт-петербурге. 04
Проект компактной квартиры - студии 23, 7 м 2 в ЖК Neva Haus в Санкт-петербурге. 05
Проект компактной квартиры - студии 23, 7 м 2 в ЖК Neva Haus в Санкт-петербурге. 06
Проект компактной квартиры - студии 23, 7 м 2 в ЖК Neva Haus в Санкт-петербурге. 07
Проект компактной квартиры - студии 23, 7 м 2 в ЖК Neva Haus в Санкт-петербурге. 08
Проект компактной квартиры - студии 23, 7 м 2 в ЖК Neva Haus в Санкт-петербурге. 09