Всё об интерьере для дома и квартиры
Лучшие идеи для дизайна интерьера, полезные советы, интересные статьи
Main menu
Главная
Интерьер для дома
Интерьер для квартиры
Идеи дизайна
Мебель
Главная
»
Интерьер для квартиры
»
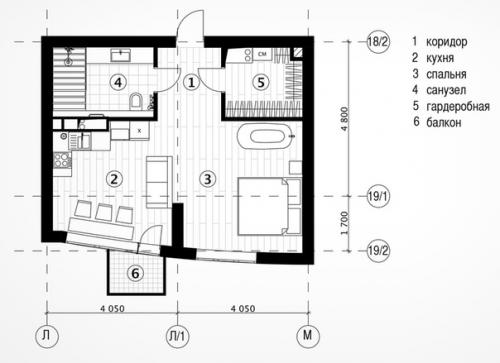
Однокомнатная квартира 45 кв.
Однокомнатная квартира 45 кв.
02.09.2019 в 19:31
Интерьер для квартиры
м от cтудии Juicy Hall
.
Категории:
Интерьер однокомнатной квартиры
,
Интерьер для квартиры
Понравилось? Поделитесь с друзьями!
⇦
День одного проекта.
⇨
Старый панельный домик.