Номинация: интерьер жилого пространства.
Проект: квартира студия в двух стилистических решениях.
Автор: Дарья Тихонова.
Заказчики пара 25-27 лет, любители.
Путешествий.
Техническое задание:
Разработать дизайн - проект в двух стилистический решениях;.
Создать функциональное зонирование спальни с помощью возведённых перегородок с дверью;.
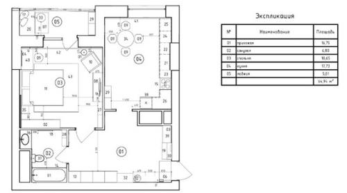
Разработать планировочные решения для квартиры студии с учетом заданного пространства: прихожая, спальня;.
Изголовье кровати украсить декоративной панелью;.
Преимущественно натуральные материалы использовать.

Дизайн - проект квартиры студии выполнен в двух стилистических решениях с использованием преимущественно натуральных материалов. За основу взяты скандинавский и эко стили, что соответствовует пожеланиям заказчиков.

На этапе планировки было принято решение отделить зону прихожей, тем самым огородив зону спальни вознесёнными перегородками с дверью.

Планировочное решение спальни оснащено кроватью, гардеробом, стеллажом, креслом с торшером, зоной TV и туалетным столиком.

Прихожая имеет гардеробную, стеллаж, подвесные шкафы, крючки для верхней одежды, пуф с зоной хранения обуви, тумба и зеркало.

Экостиль в интерьере - это ощущение близости к природе и философия осознанного потребления, реализованная в жилом пространстве. При правильном подходе экостиль позволяет создать обстановку, в которой царит истинная гармония.

В качестве акцентов были использованы оливковые, терракотовые, серо - бежевые оттенки в сочетании с текстурой и цветом деревянной мебели, что позволило сохранить особенности стилистики, сделать интерьер уютным и комфортным для проживания.

Скандинавский стиль в интерьере характеризуется простотой, функциональностью и естественными материалами. Подходит для создания уютных и функциональных пространств, идеально сочетается с современными элементами.

За основу взяты синие, бежевые и песочные оттенки с добавлением характерного рисунка в текстильных элементах. Благодаря светлому цвету стен и насыщенному освещению получилось визуально увеличить пространство, что добавляет свежести интерьеру.

Данный дизайн - проект позволяет взглянуть на помещение в разных вариациях, что демонстрирует влияние стилистических решений на пространство. Эксперименты с атмосферой являются мощным инструментом, помогающий лучше понять и визуализировать интерьерные идеи. Дизайнперспектива дизайнперспектива 2024 интерьержилогопространства дарьятихонова.