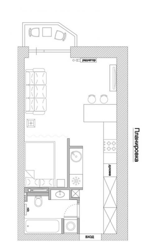
Маленькая квартира - студия с кухней в коридоре.
04.09.2020 в 12:29
Заказчица проекта - молодая девушка, недавно окончила институт и начала работать. Основное время проводит вне дома, по выходным любит готовить и приглашать друзей. В своей первой квартире хозяйка попросила создать современное, светлое и стильное пространство, при этом чтобы интерьер не был "Женским".

"В первую очередь необходимо было продумать функционал и рационально использовать каждый сантиметр площади. Поскольку никакой диван не сравнится с удобством кровати, мы решили выделить спальную зону, - рассказывает дизайнер Маргарита Фомина. - мы ее сделали на месте бывшей кухни, а гарнитур перенесли в коридор и расположили его по двум сторонам. Плита электрическая, поэтому проблем с согласованием не возникло". Миниквартира@Tinyhouse.









Категории: Интерьер маленькой квартиры, Интерьер для квартиры, Интерьер квартиры студии, Мебель для кухни, Интерьер для дома, Современный интерьер квартиры, Стили интерьеров квартир, Мебель диваны, Идеи дизайна спальни, Дизайн интерьера дома, Интерьер кухни в доме