м.
Потолки - 3. 3 метра.
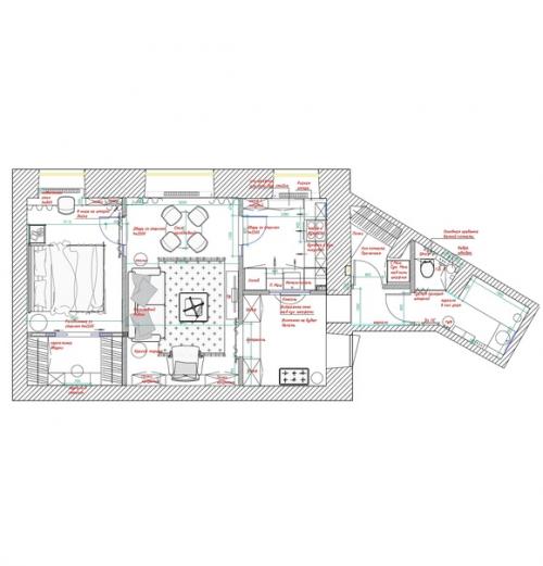
Кухня - 5. 7 кв. м. спальня - 9. 5 кв. м. гостиная - 15. 5. кв. м.
В этой квартире применен принцип анфиладной планировки, что позволило уйти от коридоров и сэкономить большое количество пространства для жизни.
Центральная комната - это гостиная, а через нее вход в кухню и спальню.
Мы огромное удовольствие от работы над этой квартирой получили. Реализация!

Проект проект разработан студией Дениса серова.









https://interior.ru-best.com/interer-dlya-kvartiry/interer-dlya-kvartiry