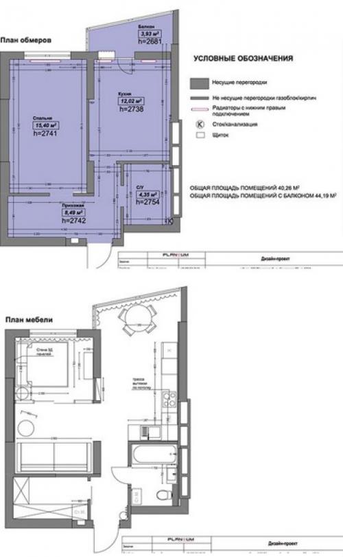
м, включая присоединенный балкон.
Заказчица проекта - молодая женщина видела свой дом в спокойных, сдержанных тонах, но с цветовыми акцентами - любимыми желтым и зеленым.
Из особенностей: хозяйка квартиры не смотрит телевизор, поэтому не было необходимости искать место его установки. Строгий отказ от радиаторов, поэтому пол абсолютно во всех комнатах - с подогревом и выложен керамической плиткой
. Так же, заказчица не хотела устанавливать кондиционеры и альтернативным решением было - потолочные вентиляторы.

Работа дизайнеров студии Planium UA, киев, Украина.







