Всё об интерьере для дома и квартиры

Лучшие идеи для дизайна интерьера, полезные советы, интересные статьи

Квартира в стиле лофт в Амстердаме.

18.10.2017 в 15:29

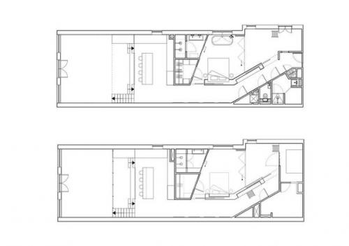
Это пространство для жизни в Амстердаме спроектировала архитектурная фирма Standard Studio. Лофт площадью 150 квадратных метров был реконструирован для улучшения функциональности помещения и создания более открытой планировки. Также дизайнеры полное обновление декора интерьера сделали. Кухню выполнила фирма Eginstill, а в основном пространстве использовали мебель компании Modern Vintage. Готовый результат выглядит современно и непринужденно
Квартира в стиле лофт в Амстердаме..

Квартира в стиле лофт в Амстердаме. 01
Квартира в стиле лофт в Амстердаме. 02
Квартира в стиле лофт в Амстердаме. 03
Квартира в стиле лофт в Амстердаме. 04
Квартира в стиле лофт в Амстердаме. 05
Квартира в стиле лофт в Амстердаме. 06
Квартира в стиле лофт в Амстердаме. 07
Квартира в стиле лофт в Амстердаме. 08
Квартира в стиле лофт в Амстердаме. 09

Далее читайте об интерьере для квартиры http://interior.ru-best.com/interer-dlya-kvartiry/interer-dlya-kvartiry