Интерьер квартиры в Вильнюсе.
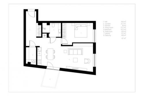
Работая над дизайном квартиры площадью 67 квадратных метров в Вильнюсе, Литва, студия Akta стремилась создать современное пространство, находящееся в гармоничных отношениях со старым городом.
Архитекторы разработали утончённый и изысканный интерьер, основу которого составляет монохромный фон стен, усиливающий звучание цвета отдельных деталей и позволяющий выделить произведения искусства
. Холодные серые тона сбалансированы бархатной обивкой мебели синего и красного цветов и дополнены графичными акцентами чёрных металлических деталей. Единый стиль во всей квартире выдержан. В спальне одна стена выкрашена в такой же светло зелёный цвет, как и шкафы в столовой. Детали мебели ванной повторяют элементы, использованные в гостиной. Отсылкой к местным традициям является рисунок деревянного пола, напоминающий советский паркет, но выполненная из этого же покрытия тумба под телевизор вносит ноту иронии благодаря необычному использованию привычного материала.








Читайте далее об интерьере деревянных домов http://interior.ru-best.com/interer-dlya-doma/interer-derevyannyh-domov