Всё об интерьере для дома и квартиры
Лучшие идеи для дизайна интерьера, полезные советы, интересные статьи
Main menu
Главная
Интерьер для дома
Интерьер для квартиры
Идеи дизайна
Мебель
Главная
»
Интерьер для квартиры
»
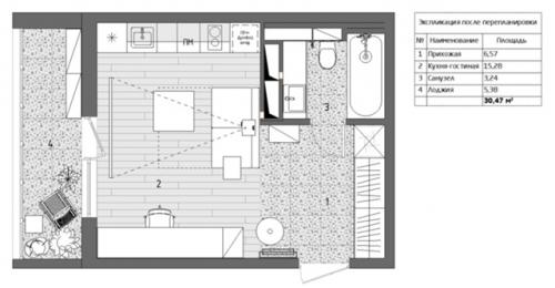
Интерьер квартиры - студии 25, 1 м 2 (30, 5 м 2 с лоджией) в ЖК терра в Санкт-петербурге.
Интерьер квартиры - студии 25, 1 м 2 (30, 5 м 2 с лоджией) в ЖК терра в Санкт-петербурге.
04.05.2025 в 00:56
Интерьер для квартиры
Дизайнер Александра чигинцева, студия CHI Design (VK: Alexandra_chi.
Санузел +
.
Категории:
Интерьер для квартиры
,
Интерьер квартиры студии
,
Дизайн интерьера дома
Понравилось? Поделитесь с друзьями!
⇦
Реализованный интерьер двухэтажной квартиры, площадью 200 м в Екатеринбурге.
⇨
Модульный дом Simple 52: качественный дом "под Ключ" в кратчайшие сроки!