Всё об интерьере для дома и квартиры

Лучшие идеи для дизайна интерьера, полезные советы, интересные статьи

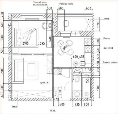
Дизайн - проект однокомнатной квартиры + плаировка.

04.03.2021 в 12:30

Площадь квартиры - 35 кв. м.
Достойное зонирование и практичное использование пространства
Дизайн - проект однокомнатной квартиры + плаировка..

Дизайн - проект однокомнатной квартиры + плаировка. 01
Дизайн - проект однокомнатной квартиры + плаировка. 02
Дизайн - проект однокомнатной квартиры + плаировка. 03
Дизайн - проект однокомнатной квартиры + плаировка. 04
Дизайн - проект однокомнатной квартиры + плаировка. 05
Дизайн - проект однокомнатной квартиры + плаировка. 06
Дизайн - проект однокомнатной квартиры + плаировка. 07
Дизайн - проект однокомнатной квартиры + плаировка. 08
Дизайн - проект однокомнатной квартиры + плаировка. 09