Всё об интерьере для дома и квартиры

Лучшие идеи для дизайна интерьера, полезные советы, интересные статьи

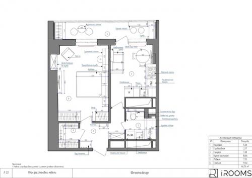
Дизайн двухкомнатной квартиры в Москве.

21.09.2024 в 13:55

Заказчики хотели получить стильный современный интерьер с элементами минимализма.

Мы сделали все именно так, как хотели заказчики, помимо этого решение нашего дизайнера ещё и максимально функционально!
Посмотрите, как на 11 кв. м кухни - гостиной мы организовали зону отдыха, обеденное место и саму рабочую зону.
А как вам лоджия и прихожая?

Все визуализации можно посмотреть по хештегу.
Дизайн двухкомнатной квартиры в Москве.
Двушка 46 кв дизайнер Арпине.

Дизайн двухкомнатной квартиры в Москве. 01
Дизайн двухкомнатной квартиры в Москве. 02
Дизайн двухкомнатной квартиры в Москве. 03
Дизайн двухкомнатной квартиры в Москве. 04
Дизайн двухкомнатной квартиры в Москве. 05
Дизайн двухкомнатной квартиры в Москве. 06
Дизайн двухкомнатной квартиры в Москве. 07
Дизайн двухкомнатной квартиры в Москве. 08
Дизайн двухкомнатной квартиры в Москве. 09