Маленький каркасный дом в Испании.
Над созданием этого небольшого сборного дома в провинции Аликанте, Испания работал архитектор Даниэль Марти перез из компании DMP Arquitectura вместе с дизайнерами Юрген ван вирелд и Карин гисбертс.
Они не просто спроектировали дом, но еще и построили его сами, используя его в качестве объекта для тестирования и совершенствования своих идей о том, как построить экономичное, но стильное быстровозводимое жилье.

Заводское изготовление рассматривается, как способ ускорить процесс строительства, сократить зависимость от дефицитного квалифицированного труда, поддержать более жесткий контроль качества готовой продукции, а в идеале - чтобы уменьшить расходы и сделать эти дома более доступными.

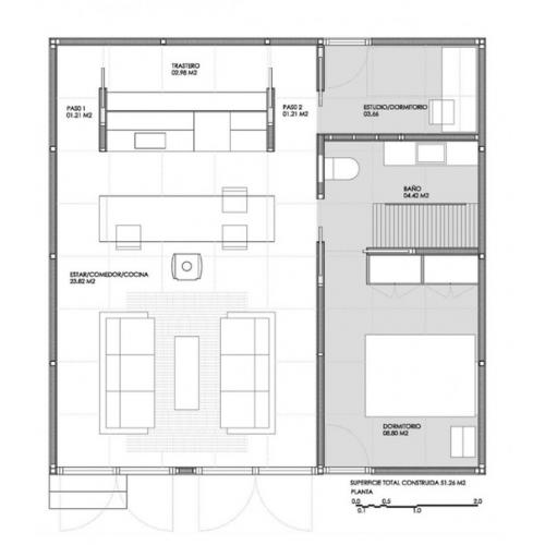
Чтобы минимизировать расходы и поспособствовать стандартизации, дизайнеры выступили с простым прямоугольным планом здания площадью 51 м 2. план этого маленького дома включает в себя открытое пространство с гостиной/столовой/кухней с одной стороны и ряд отдельных комнат вдоль другой стороны. В доме есть две спальни: комфортабельная главная спальня и крошечная вторая спальня (она же и рабочий кабинет. Большой стенной шкаф позади кухни достаточно места для хранения даёт. На плане видно, что единственный вход в дом осуществляется через французские двери гостиной, но парадную дверь можно будет также легко расположить на противоположной стороне дома рядом с чуланом. Интерьер дома довольно яркий, с белыми стенами и потолком, грамотно разбавленный древесными акцентами.

Дизайнеры выбрали древесину в качестве основного строительного материала по нескольким причинам: она имеет довольно легкий вес, проста в использовании, кроме того, она может быть использована для наружных и внутренних отделок. Дом держится на обвязке пола, выполненной из елового клееного бруса, которая, в свою очередь, опирается всего на четыре бетонных столбика. Стенные брусья, стропила и наружная облицовка также выполнены из ели, в то время как интерьер выложен окрашенной дсп. Полы также выполнены из дсп, но с цементным покрытием. Пол, стены и кровельные панели были построены в мастерской, а затем собраны на месте дизайнерами всего за десять дней. Каждая панель имеет такой легкий вес, что с ней запросто могут управиться двое работников, поэтому дом может быть построен без использования кранов или тяжелого оборудования. Минидом@Tinyhouse.






