Эскизный проект практичного дома с мансардой, с удобной функциональной планировкой.
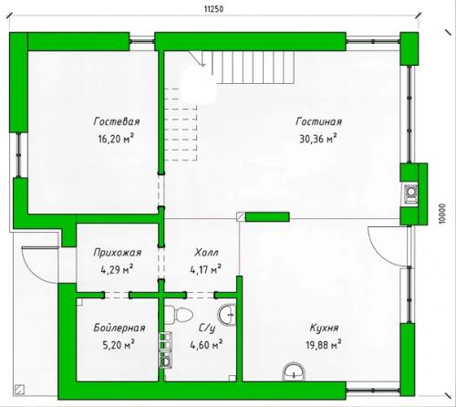
Роскошный современный дом на одну семью из 4-5 человек. В этом чрезвычайно удобном и просторном особняке есть все, что вы ожидаете от комфортного дома. Все спроектировано логично и продуманно. Функциональный интерьер здесь сочетается с хорошими пропорциями комнат и минималистичной эстетикой. Несмотря на современную форму, дом выглядит сдержанным и уютным. Рядом с домом организована деревянная терраса
. Остекление двухэтажной гостиной приносит свет в интерьер дома, здесь вы можете общаться с окружающей природой. Создание индивидуального проекта с нуля занимает около 45 дней. Интерьер организован вокруг высокой гостиной, которая с окружающими помещениями на первом этаже и балконом наверху создает роскошное жилое пространство.
Общая площадь - 230 м.


