Всё об интерьере для дома и квартиры

Лучшие идеи для дизайна интерьера, полезные советы, интересные статьи

Заказчик: "И еще мне Очень Нравится Цвет Тиффани" (озорно улыбается).

05.11.2021 в 16:54

Я: "давайте мы уточним, какой это цвет? Заказчик: "о, это прекрасный мятный цвет! Пожалуйста, сделайте так, чтобы он был в интерьере".
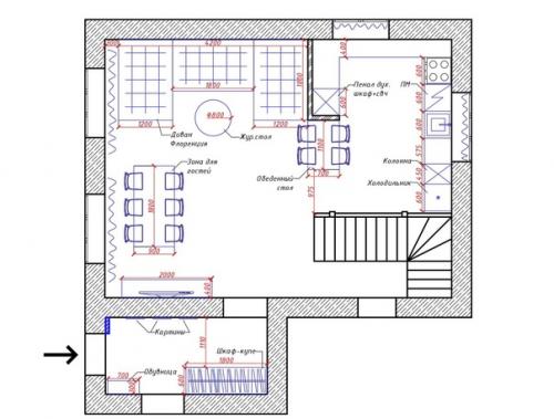
Я: "да, конечно, сделаем! Вот такая светлая уютная кухня - гостиная получилась представляю, как хозяйка душевно будет принимать гостей, которые являются каждые выходные
Заказчик: И еще мне Очень Нравится Цвет Тиффани (озорно улыбается)..

Заказчик: И еще мне Очень Нравится Цвет Тиффани (озорно улыбается). 01
Заказчик: И еще мне Очень Нравится Цвет Тиффани (озорно улыбается). 02
Заказчик: И еще мне Очень Нравится Цвет Тиффани (озорно улыбается). 03
Заказчик: И еще мне Очень Нравится Цвет Тиффани (озорно улыбается). 04
Заказчик: И еще мне Очень Нравится Цвет Тиффани (озорно улыбается). 05