Главная
» Мебель
» Все больше людей ищут жилье, которое обеспечило бы, по крайней мере, временное избавление от стрессового темпа повседневной жизни.
Все больше людей ищут жилье, которое обеспечило бы, по крайней мере, временное избавление от стрессового темпа повседневной жизни.
07.09.2019 в 15:29
Дом, который близок к спокойной природе, в котором вы услышите пение птиц, а не общественный транспорт. Собственный газон, потрескивание дров в камине, запах леса или даже сауна.
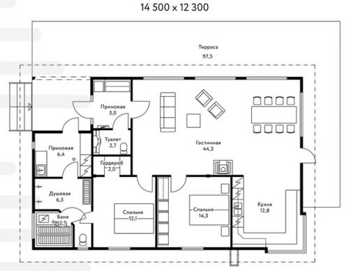
Этот финский домик попыткой создания именно такого жилья является. Его основание представляет собой прямоугольный отрез земли. Дом окружен деревянной террасой, которая создает промежуток между самим зданием и экстерьером. Наклонная плоская крыша над садом поднята
. Панорамное остекление южной стены обеспечивает много естественного света, а также тепла в интерьере.

В правой части дома - при взгляде на более высокую открытую площадку есть крытая терраса. Через вход со стороны дома вы попадаете в прихожую, оттуда можно пройти в сауну с ванной и туалетом или далее через коридор в гостиную с камином, столовую и кухню в углу. Вы можете войти в обе спальни прямо из гостиной. Общая площадь этого дома в двух этажах составляет 96 м 2.

Rustic@in_Woods Modern@in_Woods.



Категории: Интерьер для дома, Интерьер деревянных домов, Идеи дизайна прихожей, Мебель для ванной комнаты, Мебель для гостиной, Мебель для кухни, Идеи дизайна спальни