Всё об интерьере для дома и квартиры

Лучшие идеи для дизайна интерьера, полезные советы, интересные статьи

У вас маленький ребенок, а квартира всего на 50 квадратных метров?

21.06.2016 в 09:54

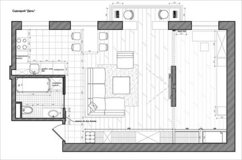
Давайте вместе пробежимся по оригинальному примеру зонирования пространства, которое из лофта сделало 2, 5-комнатную квартиру.
Дизайнер смог найти в помещении не только место под гостиную, кухню и столовую, также он вынес рабочий кабинет отдельно, отгородил выдвижной перегородкой родительскую спальню с поднимающейся кроватью и детский уголок.
У вас маленький ребенок, а квартира всего на 50 квадратных метров?
Все это выполнено в белом цвете с яркими элементами, чтобы интерьер не казался чересчур стерильным.

У вас маленький ребенок, а квартира всего на 50 квадратных метров? 01
У вас маленький ребенок, а квартира всего на 50 квадратных метров? 02
У вас маленький ребенок, а квартира всего на 50 квадратных метров? 03
У вас маленький ребенок, а квартира всего на 50 квадратных метров? 04
У вас маленький ребенок, а квартира всего на 50 квадратных метров? 05
У вас маленький ребенок, а квартира всего на 50 квадратных метров? 06
У вас маленький ребенок, а квартира всего на 50 квадратных метров? 07
У вас маленький ребенок, а квартира всего на 50 квадратных метров? 08

Ещё читайте о мебели для кухни http://interior.ru-best.com/mebel/mebel-dlya-kuhni