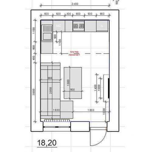
Пятничный разбор ответнавопросdesclub. "Скажите, пожалуйста, как решить проблему размещения холодильника в кухне и его открывания?
Заказчик хочет, чтобы он стоял в углу помещения. Я считаю, что в таком случае дверь не будет отрываться на 135 градусов, откроется только на 90 град., и будут мешать дверные полки выдвиганию ящиков холодильника. Подскажите, пожалуйста, как решить эту проблему. Не устану повторять: самое главное - это желание заказчика. В том случае, если он хочет разместить холодильник в углу, задача дизайнера - обеспечить нормальное обслуживание этого холодильника
. В проекте под холодильник отведено 660 мм? И это правильно по идее проблем не должно быть с выдвижением полок. Но холодильники все разные, и поэтому я советую произвести замер данного холодильника, чтобы развеять все сомнения. Фраза "я считаю. " Не устроит клиента. Да и на чем основана эта точка зрения? В случае если был произведен замер холодильника при открывании двери, и полки вытащить действительно не получилось - это одно. Но если это всего лишь предположение, то для заказчика это не аргумент.
Мой совет: предложите клиенту произвести замер холодильника и выяснить, возникнут ли в будущем проблемы с его обслуживанием или нет. Также эту информацию возможно удастся найти в технической карте холодильника.
В случае если на момент проектирования холодильник еще не куплен, то уже сейчас желательно определиться с моделью, иначе впоследствии действительно могут возникнуть проблемы при его эксплуатации.
Итак, задача дизайнера - донести свои опасения клиенту, объясняя это заботой о нем, ведь создаваемый интерьер со всеми его элементами должен быть не только привлекательным с эстетической точки зрения, но и функциональным и удобным.
Ну а в карусель я добавила варианты размещения холодильников углу - данное расположение вполне имеет место быть. Как считаете фото из пинтерест.





