Преображение однокомнатной квартиры для семьи с двумя детьми.
Как здесь появилось две спальных зоны, гостиная, кухня, раздельный санузел и даже постирочная с гардеробом.
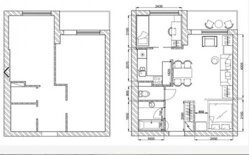
Превратить типовую однокомнатную квартиру в комфортное жилье для семьи с двумя детьми можно, если довериться профессионалу. Именно грамотная планировка, разработанная дизайнером Ольгой подольской, стала решающей в проектировании новой квартиры для большой и дружной семьи - мамы с папой и двоих детей (двух и трех с половиной лет.

"Большую часть времени в квартире проводит мама с малышами, поэтому я ориентировалась, главным образом, на их интересы, режим дня, занятия, и многое в новом интерьере создавалось для них, - рассказывает Ольга. - мы слегка изменили планировку квартиры, добавив нишу для кровати взрослых и уменьшив кухню в пользу детской".

41 кв. м; высота потолков: 3 м.








Получите больше информации об интерьере для квартиры http://interior.ru-best.com/interer-dlya-kvartiry/interer-dlya-kvartiry