Всё об интерьере для дома и квартиры

Лучшие идеи для дизайна интерьера, полезные советы, интересные статьи

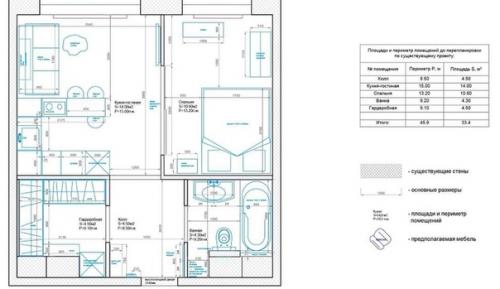
Помещение S = 38 м 2 с двумя окнами, двумя стояками, без единой перегородки!

09.03.2019 в 20:32

Пожелания всех членов семьи - грамотно спланировать студию в стиле лофт так, чтобы разместить и полноценную кухню с гостиной, сделать отдельную спальню, ванную комнату ( обязательно с ванной и никаких душевых), и - гардеробную! Оцените результат.
Помещение S = 38 м 2 с двумя окнами, двумя стояками, без единой перегородки!
Дизайнер - Britsdesign.

Помещение S = 38 м 2 с двумя окнами, двумя стояками, без единой перегородки! 01
Помещение S = 38 м 2 с двумя окнами, двумя стояками, без единой перегородки! 02
Помещение S = 38 м 2 с двумя окнами, двумя стояками, без единой перегородки! 03
Помещение S = 38 м 2 с двумя окнами, двумя стояками, без единой перегородки! 04
Помещение S = 38 м 2 с двумя окнами, двумя стояками, без единой перегородки! 05
Помещение S = 38 м 2 с двумя окнами, двумя стояками, без единой перегородки! 06
Помещение S = 38 м 2 с двумя окнами, двумя стояками, без единой перегородки! 07
Помещение S = 38 м 2 с двумя окнами, двумя стояками, без единой перегородки! 08
Помещение S = 38 м 2 с двумя окнами, двумя стояками, без единой перегородки! 09