Всё об интерьере для дома и квартиры

Лучшие идеи для дизайна интерьера, полезные советы, интересные статьи

Отличный дизайн 1-комнатной хрущёвки.

22.08.2015 в 16:55

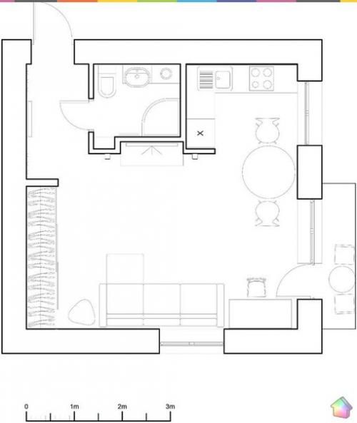
Архитектор Максим Тихонов из M2project оформил интерьер московской квартиры в кирпичной пятиэтажке 1960-го года постройки. Типичная "Хрущёвка" с простой планировкой была переделана в студию. Открытое пространство площадью 30 кв. Метров представлено всем необходимым для жизни, включая кухню, столовую, рабочее место, гостиную зону/спальное место и ванную. Яркие детали отлично смотрятся на фоне серых стен
Отличный дизайн 1-комнатной хрущёвки.. Очень уютно и просторно!

Отличный дизайн 1-комнатной хрущёвки. 01
Отличный дизайн 1-комнатной хрущёвки. 02
Отличный дизайн 1-комнатной хрущёвки. 03
Отличный дизайн 1-комнатной хрущёвки. 04
Отличный дизайн 1-комнатной хрущёвки. 05
Отличный дизайн 1-комнатной хрущёвки. 06
Отличный дизайн 1-комнатной хрущёвки. 07
Отличный дизайн 1-комнатной хрущёвки. 08
Отличный дизайн 1-комнатной хрущёвки. 09