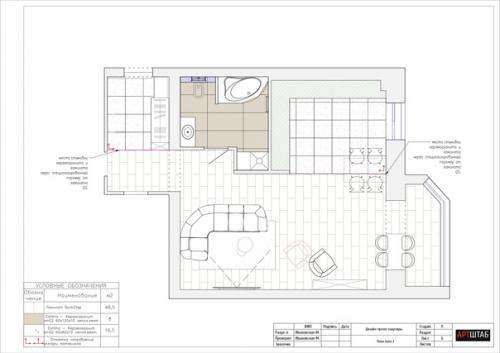
Этот проект для нас был вызовом, так как помещение действительно огромное - 55 м 2.
В проекте мы выделили три основные зоны:
Кухня;.
Гостиная;.
Барная зона;.
Пожелание заказчиков было сохранить некоторую мебель и вписать ее в новый интерьер - диван и парочка стульев. На данный момент времени проект находится в реализации очень ждем момент, когда поделимся с вами финальным результатом.
Великий Новгород.

+ 7 (921) 736 80 16.

