Начали делать дизайн проект интерьера таунхауза в ЖК "Суханово Парк".
Общая площадь порядка 330 кв. м, но в четырех уровнях.
Сейчас заказчик живет в похожем тауне, но с лифтом. Конечно, лифт сильно упрощает жизнь.
В том проекте, который мы начали делать, лифт не планируется, а лестница уже залита из железобетона.
И встает вопрос о том, как распределить функционал по четырем уровням, чтобы было и просторно, и удобно.
Цоколь отдаем под гардеробную для сезонной одежды, постирочную и, возможно, сауну с ванной.
Первый этаж понятен тоже более-менее. Кухня - гостиная, санузел с душем и прихожая.

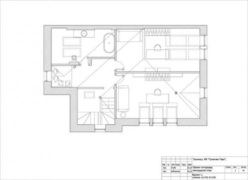
А вот второй и мансардный этажи дискуссию вызывают.
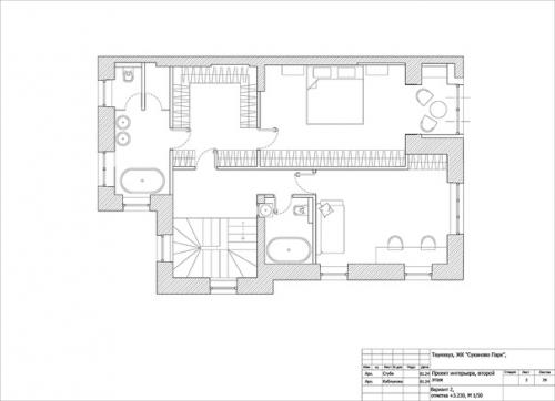
Можно расположить мастер - спальню родителей и детские на втором этаже. Но площадь этажа небольшая, помещения получаются соответствующие.

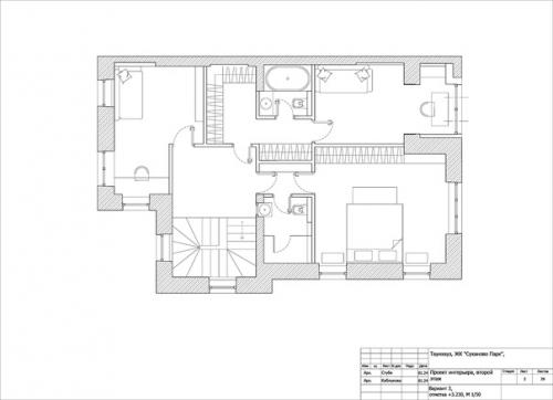
Можно отдать второй этаж полностью родителям под мастер - спальню и кабинет, а детей отправить на мансарду. Получается просторно и удобно, но до ребенка далеко.
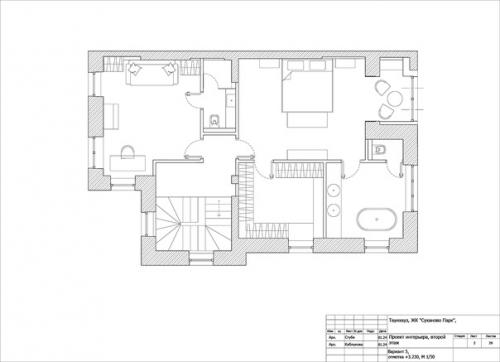
А можно отдать детям второй этаж, а родителям отдать мансарду. Тогда у родителей над головой не будут носиться дети, но родителям придется высоко подниматься.
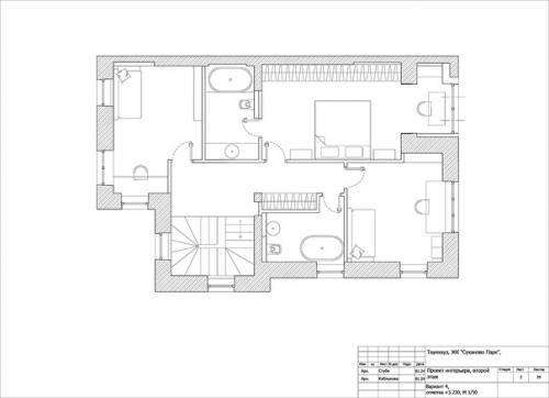
Мансарду, опять же, можно сделать с одной большой детской или с двумя.

Пока ребенок один, ему четыре года. И есть вероятность появления второго.

Мы сделали различные варианты, чтобы показать заказчикам возможности пространства. Пока они склоняются к идее мастер - спальни и кабинета на втором этаже.

Что бы вы предпочли, какой из вариантов?

