Модернизация апартаментов в Сан-Паулу.
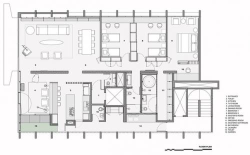
Проектное бюро Couto Arquitetura оформило частное пространство площадью 240 квадратных метров в Сан-паулу, Бразилия. Апартаменты расположены в знаковом здании, построенном в 1964 году. Хозяева хотели модернизировать резиденцию, сохранив оригинальные архитектурные особенности помещения. Архитекторы подчеркнули важность всех структурных элементов, включая небольшой сад, придающий апартаментам особый шарм
. Наряду с большими окнами, он позволяет солнечному свету наполнять дом, а деревья игриво бросают тени, освежая интерьер. Среди существенных изменений следует отметить увеличенную площадь гостиной зоны, а также объединение кухни и комнаты отдыха. Ванная, ранее плохо освещённая и слаба вентилируемая, теперь является одним из самых светлых уголков квартиры.








