Квартира площадью 50 кв.
Метров Киеве.
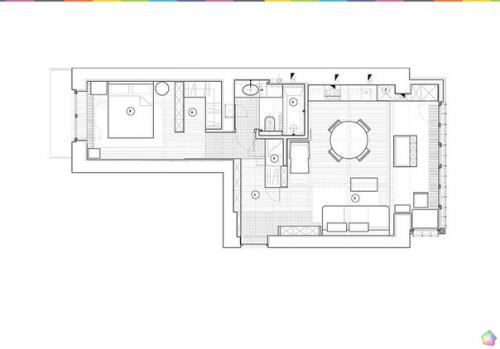
Студия Olga Akulova Design оформила интерьер небольшой квартиры площадью 50 кв. Метров в Киеве. Размещённая в доме послевоенной постройки, она ориентирована на две стороны дома - во двор и на бульвар. Квартира принадлежит зрелой паре, часто бывающей в Европе и любящей "Интеллигентный Комфорт".

Архитекторы создали полную реконструкцию объекта, разобрали все ненесущие перегородки и демонтировали подоконные части окон, выходящих во двор. Перекрытия в квартире были деревянными, поэтому было принято решение облицевать пол паркетом.

Работы над интерьером велись около года, клиенты совмещали приобретение мебели и аксессуаров с путешествиями. В гостиной зоне разместилась диванная группа Vibieffe, обеденный стол и библиотека выбраны киевского производства Paspolini, а кухонная мебель от ABC Cucine.








Подробнее читайте об интерьере деревянных домов тут http://interior.ru-best.com/interer-dlya-doma/interer-derevyannyh-domov