Квартира для жизнерадостной девушки в Киеве.
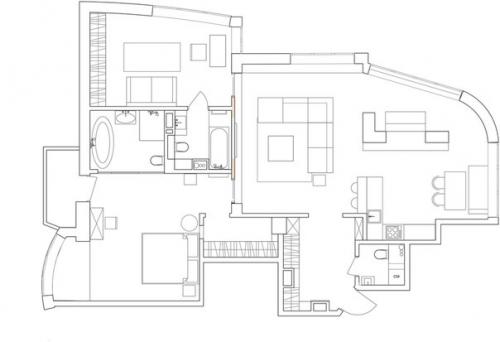
Интерьер - это всегда либо портрет заказчика, либо портрет архитектора. В данном случае получился удачный микс. Эта киевская квартира общей площадью 120 квадратных метров наполнена яркими акцентами и роскошными фактурами, полностью повторяя гардероб заказчицы. Молодая жизнерадостная девушка, которая не любит мрачные краски, хотела получить от архитектора студии Rina Lovko Design оптимистичный интерьер. Квартира расположена в новом доме и не требовала радикальных изменений в перепланировке
. Архитектор Рина ловко лишь деликатно её откорректировала: объединила гостиную с кухней и столовой, а также расширила и кое-где перенесла дверные проёмы. Благодаря этим незначительным изменениям пространство использовано экономно, а выглядит более воздушным. В интерьере практически вся корпусная мебель - деревянная и выполнена по эскизам архитектора. Также сложно не заметить разноцветный модульный диван Roche Bobois в ткани Sonia Rykiel или зелёный принт с попугаями у изголовья кровати в спальне. Что касается необычных приёмов, тут следует выделить раздвижные двери из гостиной в хозяйскую спальню и детскую комнату, которые прячутся в плоскость стены или, например, стеклянную перегородку в ванную с разноцветными стеклянными вставками. Сама заказчица очень любит травертин на стенах кухни и зеркала, которых предостаточно во всех помещениях.









Смотрите ещё статьи об интерьере кухни в доме http://interior.ru-best.com/interer-dlya-doma/interer-kuhni-v-dome