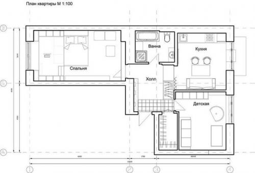
Ее планировку вы можете увидеть ниже.
В двухкомнатной квартире сделали отдельную спальню, увеличили кухню, оставили комнату под детскую, организовали гардеробную и предусмотрели зону отдыха для всей семьи. Для экономии пространства использована трансформируемую мебель. В спальне подиум с выдвижной кроватью, делящий пространство на две части.

Основные цвета этого интерьера для скандинавского стиля традиционны. Оттенки белого, голубого и цвета дерева стали основными. Для стен использовали средиземноморский синий в качестве дополняющего оттенка, для того, чтобы добавить контраст. Яркие цвета также выбрали для единичных предметов мебели и декора: ярко-желтый для дивана в детской, небесно-голубой для одного из стульев в кухне, насыщенный зеленый для кашпо в коридоре.



