Всё об интерьере для дома и квартиры

Лучшие идеи для дизайна интерьера, полезные советы, интересные статьи

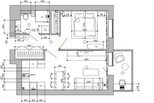
Интерьер квартиры 46 кв.

10.09.2023 в 19:55

м в Санкт-петербурге для молодого мужчины.
Кухня - гостиная + спальня. Двери не имеют наличников и сливаются со стенами за счет общей отделки - штукатурки под бетон.
Дизайнер Анастасия заркуа (TG, IG: Zarkua_Design.
Интерьер квартиры 46 кв.
Продолжение в комментариях +.

Интерьер квартиры 46 кв. 01
Интерьер квартиры 46 кв. 02
Интерьер квартиры 46 кв. 03
Интерьер квартиры 46 кв. 04
Интерьер квартиры 46 кв. 05
Интерьер квартиры 46 кв. 06
Интерьер квартиры 46 кв. 07
Интерьер квартиры 46 кв. 08
Интерьер квартиры 46 кв. 09