Интерьер дома в Репино.
15.12.2022 в 00:32
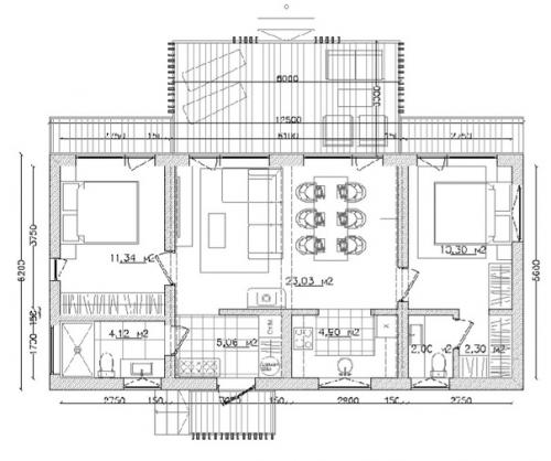
В этом 4 х модульном доме две разнесенные по боковым модулям спальни, одна из которых с отдельным санузлом, но без душа. Также в помещении кухни - гостиной сам кухонный гарнитур располагается в обособленном закутке, и это решение становится все более популярным у наших заказчиков. При таком расположении кухни мы имеем возможность сделать тёплый пол с керамогранитом и подогревом, как в прихожей и санузлах
. В остальном этот выполнен в базовых решениях с небольшими интерьерными дополнениями в гостиной.









Категории: Интерьер для дома, Идеи дизайна спальни, Мебель для кухни, Интерьер кухни в доме, Мебель для гостиной, Кухонная мебель, Идеи дизайна прихожей