Всё об интерьере для дома и квартиры

Лучшие идеи для дизайна интерьера, полезные советы, интересные статьи

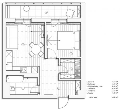
Интерьер 1-комнатной квартиры 43, 4 кв.

11.04.2024 в 13:54

м (47, 7 кв. м с лоджией.
Кухня - гостиная (16, 1 кв. м) + спальня (10, 3 кв. м.
Дизайнер Марина бовкун (Behance: Bovkundesign.
Продолжение в комментариях +
Интерьер 1-комнатной квартиры 43, 4 кв..

Интерьер 1-комнатной квартиры 43, 4 кв. 01
Интерьер 1-комнатной квартиры 43, 4 кв. 02
Интерьер 1-комнатной квартиры 43, 4 кв. 03
Интерьер 1-комнатной квартиры 43, 4 кв. 04
Интерьер 1-комнатной квартиры 43, 4 кв. 05
Интерьер 1-комнатной квартиры 43, 4 кв. 06
Интерьер 1-комнатной квартиры 43, 4 кв. 07
Интерьер 1-комнатной квартиры 43, 4 кв. 08
Интерьер 1-комнатной квартиры 43, 4 кв. 09