Дом в Днепропетровске от Nott Design Studio.
Этот большой современный дом на берегу водохранилища когда-то был маленькой семейной дачей под днепропетровском. Заказчик обратился в Nott Design Studio, когда процесс превращения шёл уже полным ходом: к старому домику пристраивалась его новая часть со вторым этажом. Так что все коррективы архитекторы буквально на лету вносили.

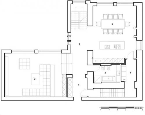
Согласно новой планировке центром дома стал вытянутый длинный холл, откуда пространство динамически разворачивается в трёх направлениях: налево и вниз - к пристроенной большой гостиной, направо - к кухне - столовой, которая вместе с гостевым санузлом заняла существовавшую ранее постройку, и наверх - на второй этаж, по минималистской деревянной лестнице с прозрачными перилами из калёного стекла в металлической раме.

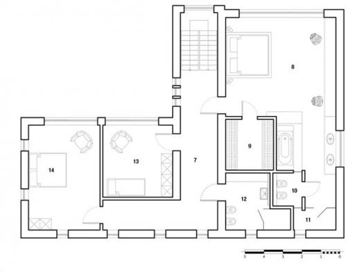
Второй этаж резиденции полностью отведён под приватную зону, где расположились главная спальня с гардеробной и санузлом, детская и гостевая комнаты. Особый акцент в многоплановой спальне поставлен на максимальное использование естественного освещения. Так, гардеробная, представляющая собой деревянный куб в центре комнаты, имеет стены высотой всего 2, 3 метра, так что сверху внутрь проникает достаточное количество света. Ванная вписана непосредственно в спальню, являясь светлой по умолчанию. И даже закрытое помещение с унитазом и биде имеет ловушки для света - две узкие застеклённые прорези на боковых стенах.

Цветовая гамма проекта построена на балансе грубых поверхностей штукатурки "под Бетон" и тёплой активной фактуры американского ореха, плюс ровный белый фон и вкрапления чёрных деталей.

Подбор мебели и предметов интерьера построен на желании заказчика иметь качественные элементы местного производства и использовать как можно меньшее количество фабричных вещей, так что вся корпусная мебель, кухня, столы, кровать сделаны по авторским эскизам местными мастерами. Завершает образ дома авторская керамика Сергея горбаня.






Далее читайте об интерьере маленькой квартиры http://interior.ru-best.com/interer-dlya-kvartiry/interer-malenkoy-kvartiry