Всё об интерьере для дома и квартиры

Лучшие идеи для дизайна интерьера, полезные советы, интересные статьи

Дом площадью 170 м 2 с большой кухней - гостиной, детской и 2 спальнями был придуман для индивидуального строительства.

11.10.2022 в 15:29

Пол года ушло на согласование планировки и ещё пол года на дизайн интерьера в этом году хозяин дома решил залить пока фундамент (ростверк на сваях) кровля предполагается с покрытием гибкая черепица.
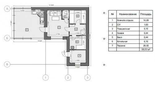
Белые окна с переплётами и обшивка потолка деревом как бы намекают на французский Прованс. Строение рядом с домом - баня с гостевой комнатой, котельной, хамамом и парилкой.
Дом площадью 170 м 2 с большой кухней - гостиной, детской и 2 спальнями был придуман для индивидуального строительства.
Что думаете о функциональности?

Дом площадью 170 м 2 с большой кухней - гостиной, детской и 2 спальнями был придуман для индивидуального строительства. 01
Дом площадью 170 м 2 с большой кухней - гостиной, детской и 2 спальнями был придуман для индивидуального строительства. 02
Дом площадью 170 м 2 с большой кухней - гостиной, детской и 2 спальнями был придуман для индивидуального строительства. 03
Дом площадью 170 м 2 с большой кухней - гостиной, детской и 2 спальнями был придуман для индивидуального строительства. 04
Дом площадью 170 м 2 с большой кухней - гостиной, детской и 2 спальнями был придуман для индивидуального строительства. 05
Дом площадью 170 м 2 с большой кухней - гостиной, детской и 2 спальнями был придуман для индивидуального строительства. 06
Дом площадью 170 м 2 с большой кухней - гостиной, детской и 2 спальнями был придуман для индивидуального строительства. 07
Дом площадью 170 м 2 с большой кухней - гостиной, детской и 2 спальнями был придуман для индивидуального строительства. 08
Дом площадью 170 м 2 с большой кухней - гостиной, детской и 2 спальнями был придуман для индивидуального строительства. 09