Дизайн - проект квартиры 87 кв.
м.
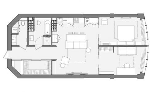
Так как в квартире при вытянутой планировке изначально было только одно окно, проблему пришлось решать комплексно. Дизайнеры снесли все существующие перегородки и возвели новые. Раздвижные двери из спален впускают максимум естественного освещения в гостиную - кухню и в открытом виде создают ощущение единого пространства.

Белые стены и глянцевые поверхности дизайнер решил разбавить деревом и "Грязными" декоративными текстурами - штукатуркой Derufa. В каждой комнате она уникальна.

Со светом хотелось придумать что-то особенное, и дизайнеры решили в качестве основного и декоративного освещения использовать LED во встраиваемом профиле и RGB LED ленту. В санузлах сделали световой потолок из матового стекла.

Висящие светильники над столом имеют больше декоративную функцию, а также выделяют кухонную зону. В детской (пока - кабинете) реплика светильника Parentesi от акилле кастильони.

В спальне реплика Visor от арне якобсен. В гостиной должен появиться торшер от Ligne Roset.

Мебель почти вся корпусная, и заказывать ее решили у местных компаний. Столовая группа и диваны Boconcept или Rom (Бельгия. Гостиная пока не полностью сформирована, но главная сложность с дефицитом пространства уже решена.

Хозяева молодые и часто приглашают к себе друзей, а ведь места в гостиной и на кухне не очень много. Решается проблема просто - двигаем диван, мы достаем дополнительные стулья из кладовой, и все готово для ужина на 6 персон. А с помощью пуфа, дивана и светильника можно создать уютную атмосферу для тихих посиделок.

А теперь несколько советов от автора проекта Павла меуха:

1. очень важный момент в проектировании - это функция. Поймите и определитесь для чего вам нужно то или иное помещение. Сделать функционально грамотный интерьер интересным и красивым гораздо легче.

2. очень сложно придумать что-то интересное, когда нет никаких "Рамок". Выбирать из тысячи вариантов гораздо тяжелее, чем из, скажем, трех.

Изначально конкретно поставленная задача избавит от многих трудностей и неопределенностей в дальнейшем.
3. не бойтесь экспериментировать с цветом! На минуту забудьте про пастельные тона. Niart дизайнинтерьера дизайнквартиры.
Читайте далее о красивых интерьерах домов http://interior.ru-best.com/interer-dlya-doma/krasivye-interery-domov