Всё об интерьере для дома и квартиры

Лучшие идеи для дизайна интерьера, полезные советы, интересные статьи

- 42 м 2 квартира -.

11.08.2023 в 12:29

* реализованный проект Djindgerdesign.
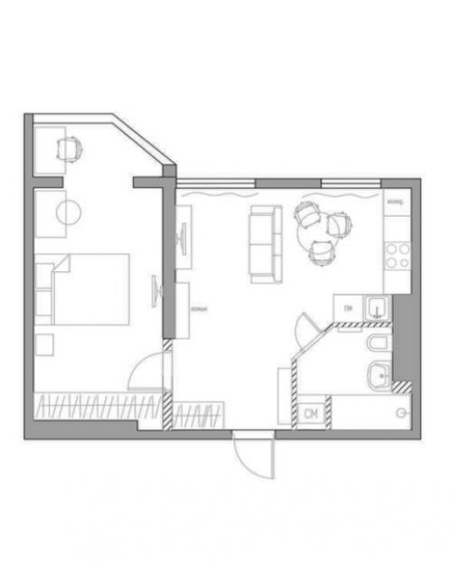
"Квартира 42 м 2, с учетом лоджии.
Сочи, ЖК "Меркато". .
Пожелание заказчиков: большая кухня - гостиная и камин.
Биокамин удачно вписался в интерьер современной гостиной.
Интерьер в приятных бежевых природных тонах, с ярким акцентами.
- 42 м 2 квартира -.
Керамика: Avtorskaya_Keramika_Sochi фото: Nesterenko_Visual.

- 42 м 2 квартира -. 01
- 42 м 2 квартира -. 02
- 42 м 2 квартира -. 03
- 42 м 2 квартира -. 04
- 42 м 2 квартира -. 05
- 42 м 2 квартира -. 06
- 42 м 2 квартира -. 07
- 42 м 2 квартира -. 08