Всё об интерьере для дома и квартиры

Лучшие идеи для дизайна интерьера, полезные советы, интересные статьи

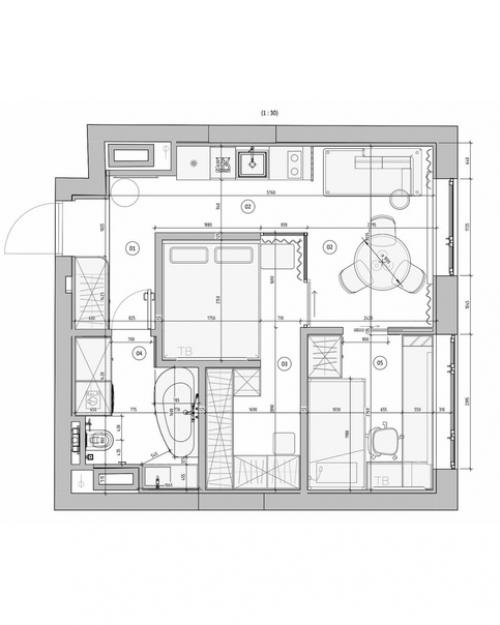
38 м 2 квартира для творческой мамы с двумя детьми.

23.01.2024 в 12:56

* проект дизайн бюро Puro.
"Большинство людей любят спокойные тона в интерьере, для жизни и отдыха, но яркий цвет заряжает энергией поэтому он жизненно необходим динамичным непоседам. По интерьеру сразу виден характер заказчика.
38 м 2 квартира для творческой мамы с двумя детьми.
"Небольшая спальня и детская комната необходимы только для сна и отдыха, но в них есть все необходимое из предметов мебели и отдельная гардеробная. Больше ракурсов в комментариях Smallkvartira_сдетьми.

38 м 2 квартира для творческой мамы с двумя детьми. 01
38 м 2 квартира для творческой мамы с двумя детьми. 02
38 м 2 квартира для творческой мамы с двумя детьми. 03
38 м 2 квартира для творческой мамы с двумя детьми. 04
38 м 2 квартира для творческой мамы с двумя детьми. 05
38 м 2 квартира для творческой мамы с двумя детьми. 06
38 м 2 квартира для творческой мамы с двумя детьми. 07
38 м 2 квартира для творческой мамы с двумя детьми. 08