Всё об интерьере для дома и квартиры

Лучшие идеи для дизайна интерьера, полезные советы, интересные статьи

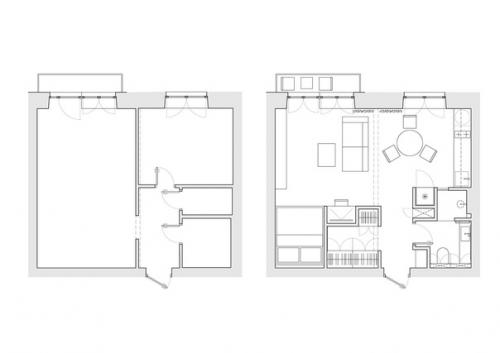
Строгий интерьер студии 36 кв.

29.04.2023 в 20:56

м в Москве для молодой пары.
Перепланировка 1-комнатной квартиры.
Дизайнер надежда Торшина (D Design Studio, IG: Dsgn
Строгий интерьер студии 36 кв..

Строгий интерьер студии 36 кв. 01
Строгий интерьер студии 36 кв. 02
Строгий интерьер студии 36 кв. 03
Строгий интерьер студии 36 кв. 04
Строгий интерьер студии 36 кв. 05
Строгий интерьер студии 36 кв. 06
Строгий интерьер студии 36 кв. 07
Строгий интерьер студии 36 кв. 08
Строгий интерьер студии 36 кв. 09