Всё об интерьере для дома и квартиры

Лучшие идеи для дизайна интерьера, полезные советы, интересные статьи

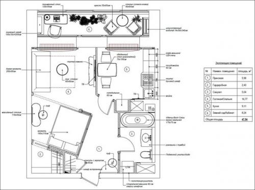
Роскошная классика в однокомнатной квартире.

26.05.2016 в 22:54

Романтичные элементы декора, обилие текстиля с позолотой и лепнина - все это делает любой интерьер более роскошным. Центром композиции в этой комнате является придиванный столик и люстра в стиле канделябра, которые сочетают в себе два основных цвета интерьера - белый и золотой.

Роскошная классика в однокомнатной квартире.
К гостиной присоединили лоджию, в которой теперь есть место для кабинета на подиуме. Для этой зоны тоже была выбрана классическая мебель в светлых тонах. В нише удобно стоит стеллаж для книг, а шторы регулируют освещаемость комнаты при разных типах работы.

Роскошная классика в однокомнатной квартире. 01
Роскошная классика в однокомнатной квартире. 02
Роскошная классика в однокомнатной квартире. 03
Роскошная классика в однокомнатной квартире. 04
Роскошная классика в однокомнатной квартире. 05
Роскошная классика в однокомнатной квартире. 06