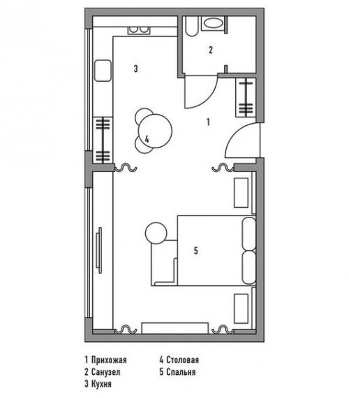
Однушка в Москве, 34 м.
"Чего не сделаешь ради друзей! " - Объясняет Татьяна Миронова, как и почему она, успешный архитектор, занялась оформлением этой квартиры - малышки. Стандартную однушку площадью 34 квадратных метра подруга Мироновой купила на вторичном рынке. И сразу решила, что так жить нельзя: старомодное пространство, поделенное на кухню и небольшую комнату, надо было превратить в современный интерьер с открытой планировкой
. Подруги условились обойтись без сложных архитектурных решений - новая хозяйка хотела поскорее справить новоселье. Поэтому планировка почти не изменилась - Татьяна убрала межкомнатные перегородки, оставив кухню и ванную на прежних местах. Отделка тоже лаконичная - белая краска на стенах и пол везде из керамогранита.
Фото: Дмитрий Лившиц Adsmallflat.





