Невероятное преображение 1-комнатной квартиры площадью 35 кв.
м в старом фонде.
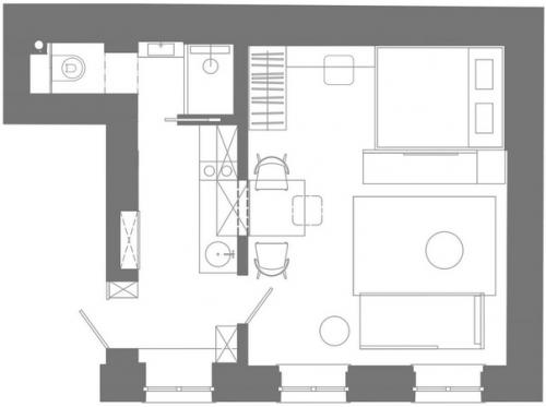
Крутой эклектичный интерьер, совмещающий в себе старое и новое. Некоторые стены были очищены до первоначальной кирпичной поверхности, подоконники были расширены, а нижняя часть деревянных балок подвесного потолка из гипсокартона осталась открытой.
Старые потолочные конструкции были усилены. Для этого были установлены две поперечные стальные опорные балки: одна проходит вдоль перегородки между кухней и гостиной, а другая посередине комнаты. Это привнесло в пространство элементы лофта, как и балки над окнами.
Важными элементами интерьера являются зеркала, которые создают дополнительное пространство и глубину.
Интересный элемент, называемый аквариумом, - стеклянная витрина над обеденным столом между гостиной и кухней, которая светится в темноте, как дизайнерский светильник.

Проект разработан сотрудниками студии Background Interior Design фотограф: Иван Сорокин.







